Basic information
Description
Te koop!
Ruime veldschuur
Ideaal als opslag of werkplaats
Staalconstructie: 2 kopspanten, 2 tussen spanten
Dak en gordingen zijn in goede staat, het dak is in 2016 vernieuwd en is asbest vrij. Zonnepanelen zijn niet over te nemen!
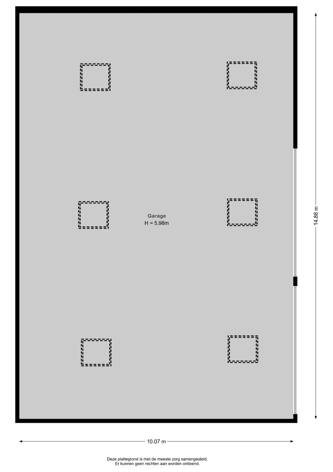
Afmetingen
Lengte 14,86
Breedte 10,07
Hoogte 5,98
Zelf demonteren
Vraagprijs €7500,-
Bij interesse graag bellen,
0657623203







